В Сан-Франциско за $500 тыс продают квартиру размером в 7 столов для пинг-понга - ForumDaily
The article has been automatically translated into English by Google Translate from Russian and has not been edited.
Переклад цього матеріалу українською мовою з російської було автоматично здійснено сервісом Google Translate, без подальшого редагування тексту.
Bu məqalə Google Translate servisi vasitəsi ilə avtomatik olaraq rus dilindən azərbaycan dilinə tərcümə olunmuşdur. Bundan sonra mətn redaktə edilməmişdir.

В Сан-Франциско за $500 тыс продают квартиру размером в 7 столов для пинг-понга

s1

Фото: 388 Fulton

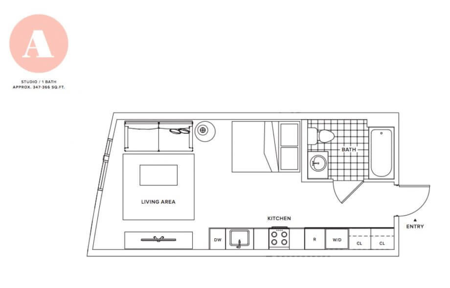
Рынок недвижимости Сан-Франциско в очередной раз подтверждает звание одного из самых дорогих. Даже супермаленькие квартиры там стоят больших денег. Так, в новом комплексе 388 Fulton в пригороде Хэйс-Вэлли студии в 350 кв. футов (32,5 метров) стоят около 500 тыс долларов. По размеру эти квартиры сопоставимы с площадью семи столов для настольного тенниса.

Обычно в США такие апартаменты (до 350 кв. футов) классифицируют приставкой «микро». Однако представитель компании, владеющей домом, Митч Брайндел настаивает на том, что подобное определение не очень подходит в их случае.

«Это квартиры поменьше, с рациональным интерьером, для людей, которые хотят найти что-то по доступным ценам», — говорит Брайндел.

Квартиры-студии устроены действительно рационально. Несмотря на маленькую площадь, в них есть и просторная ванная, и оборудованная кухня с посудомойкой и плитой известных брендов, и даже комната-гостиная, в которой помещается не только кровать, но и диван.

Кроме того, у жильцов будет возможность погулять в закрытом дворике или насладиться замечательными видами с крыши дома. На террасе расположены и шезлонги, чтобы можно было позагорать, и аппарат для гриля, а также есть зона для мини-кинотеатра.

s2

Фото: 388 Fulton

Дом расположен на улице Хэйс-стрит, что позволит также в любой момент выбраться в расположенные здесь кафе или бутики, а в пешей доступности находится парк.

Будут в доме также двухкомнатные апартаменты, которые обойдутся потенциальным покупателям в 800 тысяч долларов, и однокомнатные за 600 тысяч.

s4

Фото: 388 Fulton

Эти цены, как сообщается, будут среди самых низких в Сан-Франциско, где сложно найти что-то дешевле миллиона долларов, но 500 тысяч за квартиру размером в 7 столов для пинг-понга, в любом случае, необычная цена.

Такое предложение больше подойдет для холостяков или для тех, кто снимает с кем-то квартиру, но хочет найти отдельное пространство для себя за небольшие деньги.

s3

Фото: 388 Fulton

Читайте также на ForumDaily:

$116,5 тысяч за парковку: самый дорогой гараж в мире. ФОТО

Самые дешевые и самые дорогие дома в США

Самая дорогая железнодорожная станция в мире откроется в Нью-Йорке

Топ-20 городов США с самой дорогой арендой жилья

В США недвижимость в Сан-Франциско студия
Подписывайтесь на ForumDaily в Google News


 
1319 запросов за 1,525 секунд.